【亀田町】コンパクト 提案住宅【価格:1,980万円】

各方面へのアクセスが便利な亀田町に、シンプルで快適な2LDKのおうちはいかがでしょうか?
お一人でも、お二人でも、もちろんそれ以上の家族構成でも。
明るいリビングを中心に、自分らしい時間と家族の時間、どちらも楽しめる間取りです。
JR五稜郭駅まで徒歩圏内で、通勤・通学・お出かけにも便利。近くにはバス停もあり、市内各所への移動もスムーズです。
スーパーやコンビニ、ドラッグストアが揃い、日々のお買い物もラクラク♪
八幡小学校が近く、お子さまの通学も安心。郵便局や銀行、病院などの生活施設も徒歩圏内に充実しています。
五稜郭公園までも程近く、ジョギングやお散歩にもぴったり✨
大型ショッピング施設や飲食店も身近に揃い、便利で彩りある暮らしを叶えます。
「暮らしやすさ」と「コンパクトさ」を両立した、魅力あふれる住まいです。
詳細情報
| 種別物件 | 建売 | 建築条件 | 建築条件付土地 |
|---|---|---|---|
| 価格 | 1,980万円 | 坪単価 | - |
| 所在地 | 亀田町9-7 | ||
| 交通 | 千代台駅(徒歩26分)、函館バス 亀田町(徒歩3分) | ||
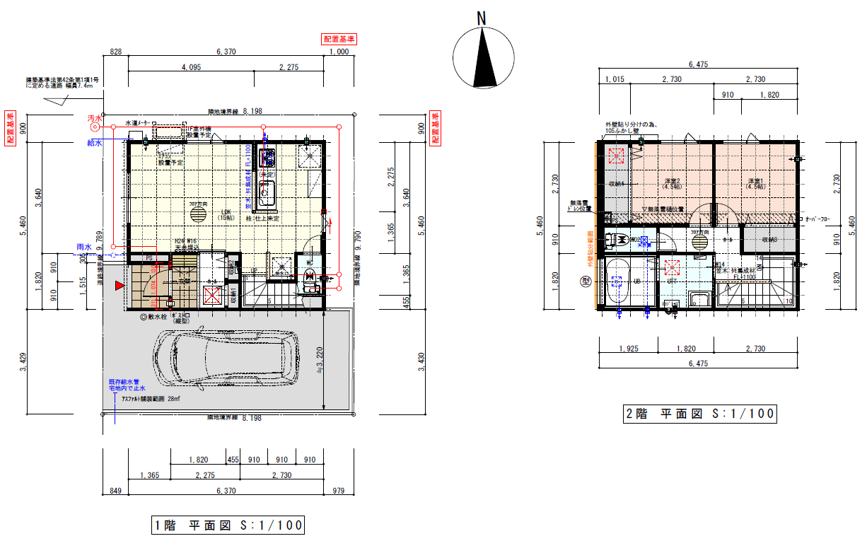
| 土地面積 | 80.25m² (24.27坪) | 延床面積 | |
| 構造 | 木造・2階建 | ||
| 地目 | 宅地 | 敷地権利 | 所有権 |
| 用途地域 | 工業地域 | 都市計画 | 市街化区域 |
| 建ぺい率 | 60% | 容積率 | 200% |
| 接道状況 | 西側幅7.40mの公道に9.78m | 私道面積 | - |
| 引渡 | 相談 | ||
| 法令 | |||
| 設備 | |||
| 現況 | 更地 | 取引態様 | 仲介 |
| 周辺アクセス | 函館市八幡小学校まで約301m、函館市五稜郭中学校まで約1.8km | ||
| 備考 | ※掲載写真はイメージです。 | ||
| 種別物件 | 建売 |
|---|---|
| 建築条件 | 建築条件付土地 |
| 価格 | 1,980万円 |
| 坪単価 | - |
| 所在地 | 亀田町9-7 |
| 交通 | 千代台駅(徒歩26分)、函館バス 亀田町(徒歩3分) |
| 土地面積 | 80.25m² (24.27坪) |
| 延床面積 | |
| 構造 | 木造・2階建 |
| 地目 | 宅地 |
| 敷地権利 | 所有権 |
| 用途地域 | 工業地域 |
| 都市計画 | 市街化区域 |
| 建ぺい率 | 60% |
| 容積率 | 200% |
| 接道状況 | 西側幅7.40mの公道に9.78m |
| 私道面積 | - |
| 引渡 | 相談 |
| 法令 | |
| 設備 | |
| 現況 | 更地 |
| 取引態様 | 仲介 |
| 周辺アクセス | 函館市八幡小学校まで約301m、函館市五稜郭中学校まで約1.8km |
| 備考 | ※掲載写真はイメージです。 |

