
好きなこと、なんでも表現できて、大切な仲間たちと思う存分くつろげる。家まるごとガレージの新空間に、「自分らしさ」を詰め込んで、家族との時間も、自分の時間も目一杯楽しもう。THE HOUSE GARAGE PROJECTが、全員、楽しい。そんなライフスタイルをお届けします。
「GORDON MILLER」らしく素材感を生かしシンプルに仕上げた塗り壁の外壁と、落ち着きのあるモスグリーンの配色に。大きな格子窓以外は、デザイン要素をあえて省くことでガレージの存在を際立たせている。
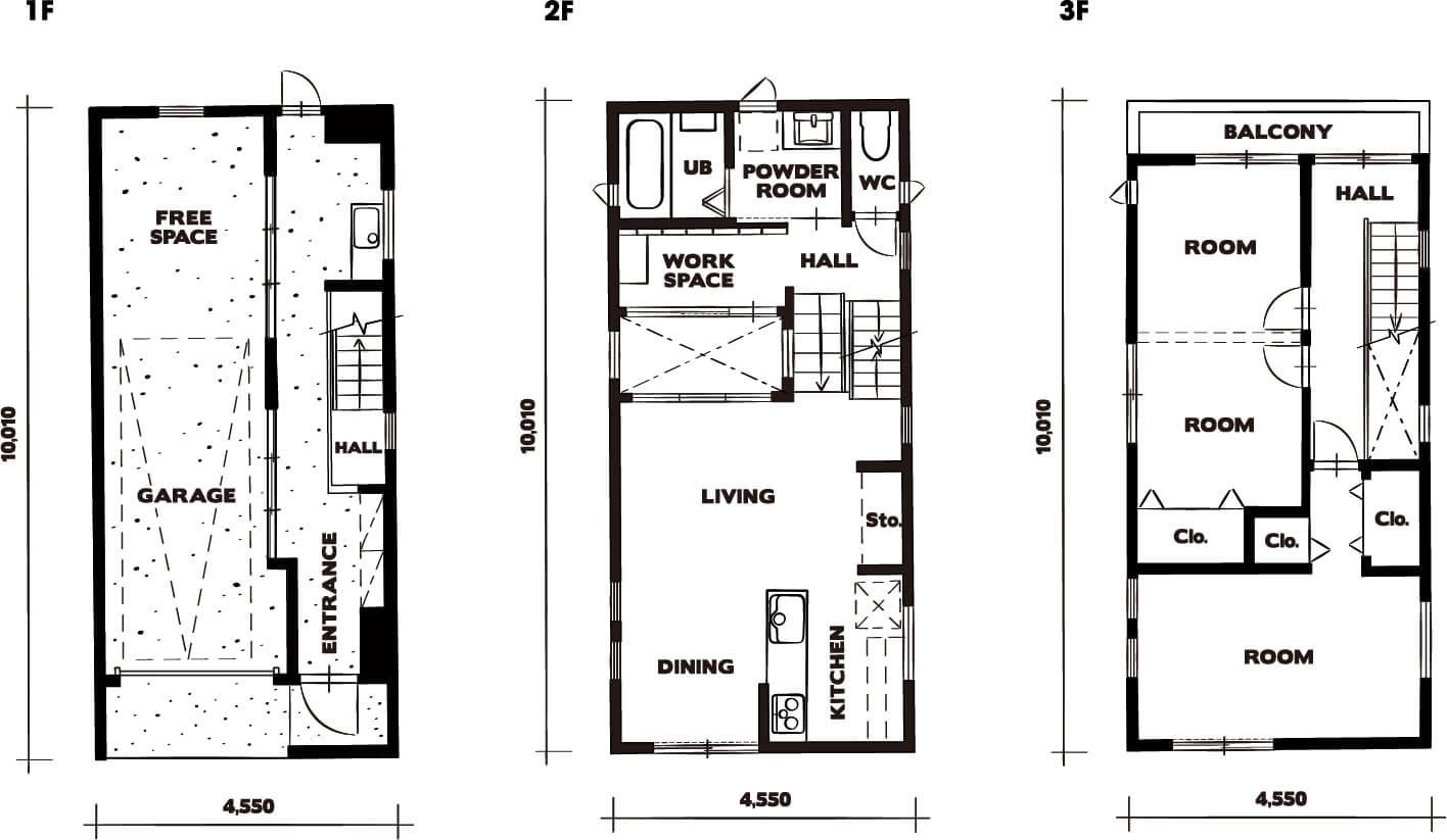
限られた敷地でも建てられるビルトインガレージを採用した、コンパクトな3階建てプラン。外観や内装はFLATタイプ同様、シンプルな塗り壁、モルタル、ウッド、アイアン、セメント板などの素材を生かし、シンプルに仕上げた。